Najam sanitarnih kontejnera – praktično rješenje za higijenu i udobnost
Mobilbox nudi profesionalne usluge najma mobilnih sanitarnih kontejnera – različitih veličina i oprema, prilagođenih svim potrebama.
Zašto izabrati Mobilbox sanitarne kontejnere?
✅ Potpuno opremljeni – grijani prostori, topla voda
✅ Visoki higijenski standardi – priključci na vodu i odvod
✅ Mobilna rješenja – brza montaža gdje god trebate
✅ Ekološki prihvatljivi – štedljivi vodokotlići i uređaji
✅ Fleksibilni uvjeti – dnevni, tjedni ili mjesečni najam
Gdje možete koristiti naše sanitarne jedinice?
🏗️ Građevinska gradilišta – za radnike i upravljačko osoblje
🎪 Festivali i koncerti na otvorenom – za posjetitelje i izvođače
🏕️ Sezonske lokacije – kampovi, plaže, ski staze
🎉 Privatne proslave – vjenčanja, rođendani, maturalne večeri
🆘 Humanitarne akcije – hitna sanitarna rješenja
Mobilbox jamči:
✔ Brzu i profesionalnu uslugu
✔ Transparentne cijene bez skrivenih troškova
📞 Nazovite nas već danas za besplatno savjetovanje!
Najam tuš kontejnera – Mobilbox rješenja
Tražite tuš kontejnere? Imamo savršeno rješenje za vas!
Nudimo moderno organizirane tuš kontejnere u različitim izvedbama:
✔ Samostalni tuš kontejneri (6 tuš kabina)
✔ Odvojeni muško-ženski prostori s dva ulaza
✔ Kombinirana rješenja (tuš + WC)
Pronaći ćemo optimalno rješenje za vaše specifične potrebe!
Kontaktirajte Mobilbox tim za personaliziranu ponudu.
Najam WC kontejnera – Mobilbox rješenja
Tražite funkcionalne WC kontejnere za najam? Mobilbox nudi cjelovitu ponudu sanitarnih rješenja:
✔ Standardni WC kontejneri s 6 kabina
✔ Segmentirani modeli s odvojenim muškim i ženskim ulazima
✔ Kombinirane jedinice (WC + tuševi u jednom kontejneru)
Što vam pružamo?
- Profesionalne usluge najma
- Brzu dostavu na području cijele Hrvatske
- Redovito održavanje i čišćenje (po želji)
📞 Kontaktirajte naš prodajni tim za optimalno rješenje koje će zadovoljiti sve vaše zahtjeve.
Naše lokacije: Zagreb, Split, Vinkovci, Žminj
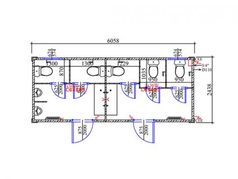
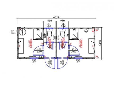
Karakteristike MW20 WC kontejner
Osnovna oprema:
- 1 kom vanjska vrata: 875 x 2.000 mm
- 4 kom bijelih PVC prozora s nagibnim mehanizmom: 674 x 574 mm, termički izolirano zamagljeno staklo
- 6 kom WC kabina, vrata s WC bravom
- 6 kom keramičkih WC-a s vodokotlićem, držač za papir
- 2 kom duplih akrilnih umivaonika sa slavinom hladne vode, ogledalo, PVC polica, držač za sapun i držač ručnika
- 2 kom pisoara
- 2 kom pregrade
Električne instalacije:
- 1 kom 400 V / 5-polni 3 x 32 A vanjski priključak prema CEE normama, ugrađen u okvir krova, spojiv
- 1 kom razvodna kutija s osiguračima, s RCD-om i prekidačem
- 2 kom 1 x 36 W fluorescentnih cijevi
- 1 kom prekidač za svjetlo
- 2 kom utičnice 230 V
- 1 kom el. grijalica 2,0 kW
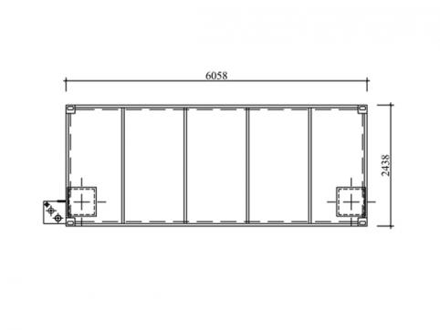
Dimenzije
| Tip | Vanjske dimenzije | Unutarnje dimenzije | Težina | ||||
| D | Š | V | D | Š | V | ||
| MW20 | 6,058 | 2,438 | 2,591 | 5.858 | 2.238 | 2.330 | 2,760 |
| MW23 | 6,058 | 2,438 | 2,591 | 5.858 | 2.238 | 2.330 | 2,690 |
| MS20 | 6,058 | 2,438 | 2,591 | 5.858 | 2.238 | 2.330 | 2,560 |
| MS22 | 6,058 | 2,438 | 2,591 | 5.858 | 2.238 | 2.330 | 2,460 |
| MS28 | 6,058 | 2,438 | 2,591 | 5.858 | 2.238 | 2.330 | 2,690 |
| MZ20 | 6,058 | 2,438 | 2,591 | 5.858 | 2.238 | 2.330 | 2,520 |
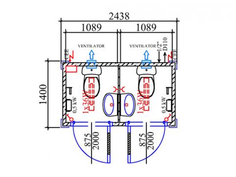
| MW05 | 1,400 | 2,438 | 2,591 | 1,200 | 2.238 | 2.330 | 720 |
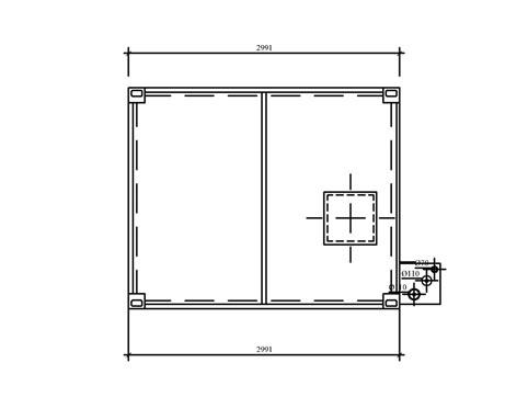
| MS10 | 2,991 | 2,438 | 2,591 | 2,791 | 2.238 | 2.330 | 1,560 |
| MW10 | 2,991 | 2,438 | 2,591 | 2,791 | 2.238 | 2.330 | 1,440 |
| MT10 | 2,991 | 2,438 | 700 | 800 | |||
| MT20 | 6,058 | 2,438 | 700 | 1,800 | |||
| MVT20 | 6,058 | 2,438 | 700 | 1,900 | |||
| MB27 | 6,058 | 2,438 | 2,591 | 5,858 | 2,238 | 2,330 | 2,300 |
PIŠITE NAM
Za ponudu ispunite formular
Naše usluge
- najam kontejnera
- prodaja kontejnera
- savjetovanje
- dizajniranje kontejnera
- proizvodnja kontejnera
- postavljanje kontejnera (manipulacija kranom, sastavljanje)
- prijevoz kontejnera
- održavanje kontejnera
- izrada kontejnera prema posebnim zahtjevima
Područja primjene naših kontejnera
- uredi za projektante
- uredi za voditelje gradilišta
- svlačionice
- smještajne jedinice
- radionice
- recepcija
- portirnica
- prodajni prostori
- stanice za testiranja
- skladištenje opreme
- skladištenje alata
- mobilni sanitarni čvor























