Uredski kontejneri – Mobilbox prostorna rješenja
Trebate funkcionalan, moderan i brzo dostupan uredski prostor? Naša mobilna uredska rješenja omogućuju vam prilagodbu prostora – bez dugih čekanja i kompliciranih građevinskih radova!
Zašto odabrati Mobilbox uredske kontejnere?
✅ Brzina i fleksibilnost – dostavljamo vaš novi uredski kontejner odmah!
✅ Potpuna prilagodljivost – birate veličinu (od 5′ do 30′), boje, raspored i opremu – mi ostvarujemo vašu viziju!
✅ Modularni dizajn – lako se kombiniraju s postojećim objektima i proširuju po potrebi
✅ Idealno za sve namjene – pojedinačne urede, privremene poslovne prostore ili cijele kontejnerske komplekse
✅ Rješenje “ključ u ruke” – brinemo se o dostavi, montaži i opremanju – vi samo uđete i počnete raditi!
Kako naručiti?
- Odaberete veličinu i specifikacije (standardne ili prema vašim zahtjevima)
- Dobijete besplatnu ponudu i savjetovanje
- Dogovorite montažu na željenoj lokaciji
- Uživate u potpuno funkcionalnom uredskom prostoru!
📞 Nazovite nas danas i dobijte uredski kontejner koji će u potpunosti odgovarati vašim potrebama!
✉️ Pošaljite upit za besplatnu savjetovanje i ponudu bez obveza!
Mobilbox – brza, moderna i učinkovita rješenja za vaš poslovni prostor!
Naše lokacije: Zagreb, Split, Vinkovci, Žminj
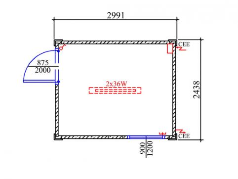
MB20
Dizajn:
- Lako postavljanje i mobilnost
- Promjenjiva struktura panela
- Okvir kontejnera: bojana čelična konstrukcija
Zidovi:
- vanjski: profilirani čelični limovi
- unutarnji: iverica
- 1 kom vanjska vrata: 875 x 2.000 mm
- 2 kom bijelih PVC prozora: 900 x 1.200 mm, mehanizam za nagib i okret, termički izoliran, s roletama
Boje:
- okvir kontejnera: crvena (RAL 3000)
- vanjski zidovi: svijetlosiva (RAL 7035)
- unutarnji zidovi: svijetlo drvo ili bijeli
- pod: svijetlosiva PVC
Izolacija:
- Pod: 60/100 mm – mineralna vuna
- Zidovi: 60 mm – mineralna vuna
- Krov: 100 mm – mineralna vuna
Električne instalacije:
- 1 kom 400 V / 5-polni
- 3 x 32 A vanjski priključak prema CEE normama, ugrađen u nosač krova, spojiv
- 1 kom razvodna kutija, s RCD-om i prekidačem
- 1 kom prekidač za svjetlo
- 2 kom 2 x 36 W fluorescentnih cijevi
- 3 kom utičnice 230 V
Po posebnim narudžbama:
- Vanjska boja po želji prema RAL standardu
- Prilagođene dimenzije i dizajn
Dimenzije
| Tip | Vanjske dimenzije | Unutarnje dimenzije | Težina | ||||
| D | Š | V | D | Š | V | ||
| MB20 | 6,058 | 2,438 | 2,591 | 5,858 | 2,238 | 2,330 | 1,980 |
| MB20H | 6,058 | 2,438 | 2,765 | 5,858 | 2,238 | 2,500 | 2,080 |
| MB20S | 6,058 | 2,438 | 2,591 | 5,844 | 2,231 | 2,300 | 1890 |
| MB10 | 2,991 | 2,438 | 2,591 | 2,791 | 2,238 | 2,330 | 1,130 |
| MB10H | 2,991 | 2,438 | 2,765 | 2,791 | 2,238 | 2,500 | |
| MB10S | 2,991 | 2,438 | 2,591 | 2,775 | 2,231 | 2,300 | |
| MB25 | 6,058 | 2,438 | 2,591 | 5,858 | 2,238 | 2,330 | 2,150 |
| MB26 | 6,058 | 2,438 | 2,591 | 5,858 | 2,238 | 2,330 | 2,220 |
| MB08 | 2,438 | 2,438 | 2,591 | 2,235 | 2,238 | 2,330 | 720 |
| MB05 | 1,400 | 2,438 | 2,591 | 1,200 | 2,238 | 2,330 | 620 |
| MB05S | 1,418 | 2,438 | 2,591 | 1,200 | 2,238 | 2,300 | |
| MB05 ECO | 1,400 | 2,438 | 2,591 | 1,200 | 2,270 | 2,330 | 650 |
| MB16 | 4,880 | 2,438 | 2,591 | 4,680 | 2,238 | 2,330 | 1,620 |
| MB24 | 7,325 | 2,438 | 2,591 | 7,125 | 2,238 | 2,330 | 2,390 |
| MB30 | 9,125 | 2,438 | 2,591 | 8,925 | 2,238 | 2,330 | 2,890 |
| MB15 | 2,991 | 2,438 | 2,591 | 2,791 | 2,238 | 2,330 | 1,280 |
| MB40 | 12,192 | 2,438 | 2,896 | 12,052 | 12,052 | 2,500 | 5,975 |
PIŠITE NAM
Za ponudu ispunite formular
Naše usluge
- najam kontejnera
- prodaja kontejnera
- savjetovanje
- dizajniranje kontejnera
- proizvodnja kontejnera
- postavljanje kontejnera (manipulacija kranom, sastavljanje)
- prijevoz kontejnera
- održavanje kontejnera
- izrada kontejnera prema posebnim zahtjevima
Područja primjene naših kontejnera
- uredi za projektante
- uredi za voditelje gradilišta
- svlačionice
- smještajne jedinice
- radionice
- recepcija
- portirnica
- prodajni prostori
- stanice za testiranja
- skladištenje opreme
- skladištenje alata
- mobilni sanitarni čvor




























